• 香蕉视频污在线观看,香蕉视频下载污,香蕉视频APP涩,黄色软件香蕉视频

    攔汙除汙係列

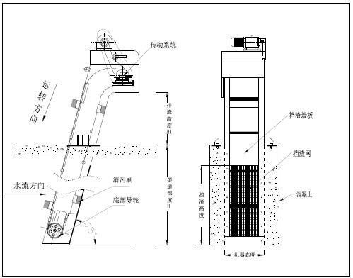
    WBF轉刷網蓖式格柵除汙機

    發布時間:2018-07-02  點擊次數:5227 次
    概述
           WBF轉刷網蓖式格柵除汙機適用於城市汙水處理、自來水行業、電廠進水口,同時也可作為紡織、食品加工、造紙、皮革等行業生產工藝中不可缺少的專業設備,是目前技術穩定的固液分離設備之一。

    工作原理
           WBF轉刷網蓖式格柵除汙機主要由驅動裝置、機架、主軸、柵網、托渣板、固定板刷、回轉刷及牽引鏈組成。在電機驅動下,通過減速機減速後,帶動鏈輪與鏈條運動,固定在回轉鏈條上板刷沿柵網網麵由下而上移動,清掃網麵並帶走汙物,汙物運送至頂部時,大部分靠重力自行落至排渣都,少量附著在固定板刷上的汙物被轉動的回轉刷清除掉,完成除汙過程,液體則通過柵網的間隙流過,整個工作過程連續進行。

    特點與應用
           轉刷網蓖式格柵除汙機能對水中的果皮、雜草、懸浮物等容易纏繞難以卸料的雜質進行可靠的攔截和清除,有效應用於果汁製品廠、果醬製品廠、農作物製品廠等。相對於耙齒形式的細格柵,本產品優點:傳動部件相對較少,工作可靠;采用便拆式結構,維護簡單;設備有自潔機構,不易堵塞,不易被垃圾纏繞、容易卸料。

    外形示意圖
           過水流量計算
           過水流量計算——
           格柵每小時過水流量:
           Q=K*(B-160)*h*V*3600
           其中:
           Q=過水流量(m³/h);
           K=與格柵間隙有關的流量係數(見係數表);
           B=格柵機寬(m);
           h=柵前水深(m),一般按1m或低於渠深0.3m以上;
           V=過流速度,一般取0.6~1m/s。

    主要技術參數
    過流係數K
    格柵間隙(mm) 0.5 1 2 3 5
    流量係數K 0.08 0.1 0.12 0.27 0.36
    注:可以采用插值法得出其他間隙對應K值的近似值。

    相關產品

    聯係人:史經理 15906151243 / 邵經理 15301530861

    郵 箱:hopehb@126.com

    地 址:江蘇省宜興市高塍鎮塍文路18號

    掃一掃
    關注手機站
    Copy right © 2019 無錫黄色软件香蕉视频環保科技有限公司 版權所有 備案號:蘇ICP備88545661號 蘇公網安備32028202232133號
    展開